Quinta das Conchinhas

Affordable Housing

2023/2024
dwelling
Chelas, Lisbon

In response to the fragility identified in the urban context of Chelas Urbanization Plan, such as segregation, reflecting on degradation of public space; the proposal consists in bringing unity to the public space trhough; proposing 4 parallel and equidistant bars, grouped in pairs, defining two blocks open to the valley. Each pair delimite a claustro, holding a space of encontour and distribution to the units.

The bar volumes are operated in a way defining 3 typologies of openings – one for the typical floor and the other for the dialogue with the groundfloor. The window is assumed here as a form of spatial characterization and cultural significance, seeking to relate not only to the surroundings, but also to Lisbon models of collective housing through the rigorous and systematic design of the facades, counterbalanced by the richness of the opening.

The proposal is developed at two levels and in the transition between them. At the higher level, the space connects intensely with the neighborhood, opening a contact front and resolving traffic congestion with a new road connecting João Paulo II Avenue, Alfredo Duarte Street, and Paulo VI Avenue.

Ground floor
Ground floor

Public parking is reorganized on the north sidewalk of the new road, while the western pocket is redesigned in line with the urban design. On the north sidewalk, a row of lodãos (savanna trees), along with a line of park benches, will serve to shade pedestrian and parking spaces.

At the lower level, the road character of the Baptista alley currently dominates. Therefore, the proposal widens the sidewalk that receives the access road to the indoor parking lot as well as some parking spaces. The alignment of the lodãos allows for the control of the scale of this promenade and softens the environment, allowing services and commerce to benefit from this connection.

Section
Section

At the connection between the two levels, between blocks, a large, gently sloping square is characterized by a micro-forest dominated by Portuguese oaks and wild olives, this time punctuated to the north by a playground and upstream by a depression for rainwater retention and infiltration.

The housing program is similar in both buildings, mostly confined to the ground floor and the remaining upper floors. Access to each block is provided at the ground level by a cloister, visually permeable from the outside(2), for lingering, socializing, and connecting with the rest of the housing program(3) (4).

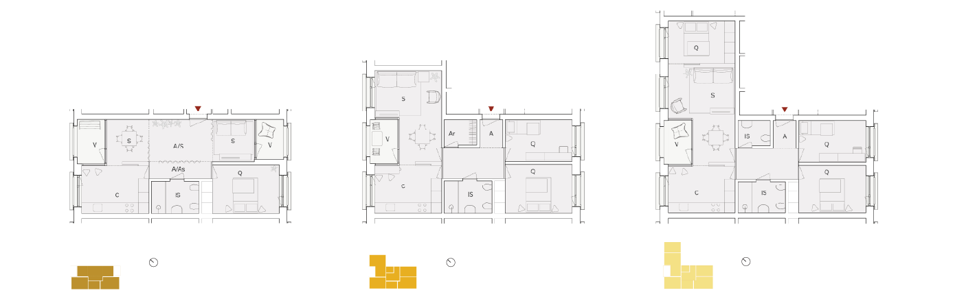
Typologies
Typologies
Typical floor plan
Typical floor plan

From each cloister, interior corridors are created to access vertical circulation, storage areas for cleaning materials, and solid waste (MSW), as well as secondary access and evacuation routes, located on the sides of the blocks.

Inside the cloisters, a humid microforest dominated by alders and supplemented by other native hygrophilous species is established.

The commercial program and services, located alternately on the sides of the blocks, serve to activate the adjacent public space, adjusting topographically, between the elevations of floors 0, -1, and -2, to the altimetric characteristics of the proposed new public spaces.

Facade constructive system
Facade constructive system
Stonemasonry - from structural to infrastructural systems
Stonemasonry - from structural to infrastructural systems
Construction section
Construction section
Le Familistère Guise, Jean-Baptiste André Godin, 1859
Le Familistère Guise, Jean-Baptiste André Godin, 1859

Year – 2025
Competition – 2nd Prize
Client – IHRU

Location – Chelas, Lisbon, Portugal
Area – 22 342,40ha
Budget –
29 359 988,98€

Partners – Albuquerque Goinhas, Cristina de Mendonça, Nuno Griff

in Collaboration – Marco Beltrão

Project Team – João Antunes, Fabiana Ferreira

Landscape Architecture – Catarina Raposo, Joana Marques, Pedro Gusmão, Samuel Alcobia (BALDIOS)

Engineering – Civiconcebe, Blueorizon

3D visualization – Filipe Borralho